Controla la iluminación sin domótica – CCT
Teníamos muchas ganas de presentar este producto y nos ha llevado un tiempo poder agrupar la información suficiente para darlo a conocer.
Antes de nada, una breve explicación de lo que significa CCT. Las siglas CCT es el acrónimo de COLOR CHANGING TECNOLOGY y está tecnología nos permite cambiar la temperatura de color de los LED’S sobre la marcha, pasando de una luz cálida 2700 grados Kelvin a una luz fría 6000 K sin tener que cambiar la luminaria.

Queremos ofrecer un pack, un sistema sencillo a través de tiras led CCT y de unos receptores que nos permitan controlar la luz, apagar, encender, regular la intensidad de la luz y la temperatura de color de las mismas. Además, su mando nos permite controlar zonas separadas e independientes y crear escenas.
Sin tener que llegar a la domótica, podemos desde un mando hacernos un poco más fácil el control de la iluminación en nuestro espacio.
Primeros pasos – ¿Qué necesitas saber?
Lo primero que necesitas saber es en qué lugar vas a poner las tiras LED y donde se encienden. Puede ser debajo de un mueble de TV, debajo de una isla, debajo de unos muebles de cocina. Tener un punto de luz lo más cercano es casi imprescindible.

Una vez tengas claro ese punto, tendrás que saber cuánto mide el LED que quieres colocar para así saber de cuantos metros va a ser la tira led, el perfil y el difusor (nunca colocamos un led sin su difusor blanco 70%, ya sabes lo molestos que son los puntos de luz directos a los ojos). En este momento, coge un metro y mide bien la longitud de la tira led que necesitas.
No te preocupes si no da un número exacto, las tiras de led tiene zonas de corte para ajustarlo a tu medida.
Otro aspecto importante es saber si el perfil de aluminio se va a colocar en superficie –S8– o empotrado en algún mueble –E8– (normalmente fabricados por carpinteros, ellos se encargan de realizar la hendidura donde se empotrará el perfil).

PERFIL DE SUPERCIFIE S8

PERFIL EMPOTRADO E8
Entonces, ya tenemos:
· Localizada la zona o lugar donde queremos poner la tira o tiras led.
· Localizado el punto o los puntos de luz donde irán conectadas las tiras led, y el interruptor o interruptores que las accionarán.
· Sabemos los metros de tira led, perfil y difusor
· Sabemos si el led va a ir empotrado o de superficie
¿Cuántos receptores necesitarás?
El receptor es un aparato que se conecta a la tira led y a su vez a la fuente de alimentación y es el que nos permite a través del mando a distancia darle ordenes a la tira led o tiras. La cantidad de receptores dependerá de la cantidad de zonas que quieras crear. Cada zona necesitará un receptor para hacerla independiente al resto.

Con este pack podemos definir hasta 6 zonas dentro de un espacio y cada una de esas zonas necesitará un receptor para hacerlas independientes. No hace falta que llegues a 6 zonas. Puedes solo tener 3 o 4, eso no es relevante. Lo que si lo es, es que son máximo 6 y que cada zona tendrá su receptor.
¿Cuántas fuentes/transformadores necesitas?
Pero primero, ¿Qué es una fuente de alimentación?
Una fuente de alimentación o transformador es un dispositivo que convierte la corriente alterna (AC), típicamente suministrada por la red eléctrica doméstica, en corriente continua (DC) de voltaje y amperaje adecuados para alimentar las tiras de LED.
Estas fuentes de alimentación son esenciales porque la mayoría de las tiras de LED operan con corriente continua de bajo voltaje, generalmente 12V o 24V.
Este es un punto bastante importante, porque hay que tener en cuenta los encendidos y hacia qué puntos de luz van.
Puede que un interruptor encienda varias tiras de led o simplemente una. Pero hay que tenerlo en cuenta ya que dependiendo de los metros de tira led que encienda la fuente / transformador será de más o menos potencia.
Cuantos más metros y de más potencia sea la tira de led más potente tendrá que ser la fuente de alimentación.
Cajas de registro
Un aspecto también algo relevante, es ubicar las cajas de registro de la vivienda. Serán los huecos en la pared que normalmente van tapados con un embellecedor y también a veces pintados, donde podremos encontrar las conexiones. En esos huecos tendremos que encontrar los cables que controlan los interruptores para poder hacer las conexiones y colocar las fuentes y receptores. Un profesional no tendrá problema en encontrarlos.


Si no te quieres liar en este punto, también puedes encontrar un escondite cerca de la tira led donde poner estos dos aparatos. Cuidado si están cerca de fuentes de humedad o agua.
¿Qué se necesita?
TIRA LED
Una tira de iluminación LED es un dispositivo flexible que consiste en una serie de pequeños diodos emisores de luz (LED) colocados en una tira delgada y flexible.
Son versátiles y se utilizan en una amplia variedad de aplicaciones, desde iluminación decorativa en el hogar y comercios hasta iluminación de fondo para televisores, monitores o vitrinas.
Una de las ventajas principales de las tiras LED es su eficiencia energética, ya que consumen menos electricidad que otras fuentes de iluminación tradicionales y suelen tener una vida útil más larga y son más duraderas.
Estas tiras suelen ser bastante fáciles de instalar, ya que a menudo vienen con adhesivos en la parte posterior que permiten fijarlas a casi cualquier superficie. Además, muchas tiras LED son compatibles con controladores que permiten ajustar el color, la intensidad y otros aspectos de la iluminación, lo que las hace aún más versátiles y funcionales.

Caracteristicas de las Tiras Led que utilizamos
Tira TSL DUAL 2
Lúmenes: 1600Lm/M
Eficacia: 100Lm/m
Tª de color: CCT
Indice de estanqueidad: IP20
CARACTERISTICAS ELÉCTRICAS
Tensión: 24VCD
Potencia: 16w/m
Intensidad: 667mA/m
Intensidad máx: 5A
CARACATERISTICAS ÓPTICAS
CRI: >90 (índice de reproducción cromática)
Consistencia: 3 SDCM
Ángulo: 120º
CARACTERISTICAS TÉCNICAS
Tipo LED: SMD2216
Densidad: 280 Led/m
Corte minimo: 50mm
Longitud máx: 8 m




Perfiles y difusores
Receptores
Fuentes de alimentación
Ayuda
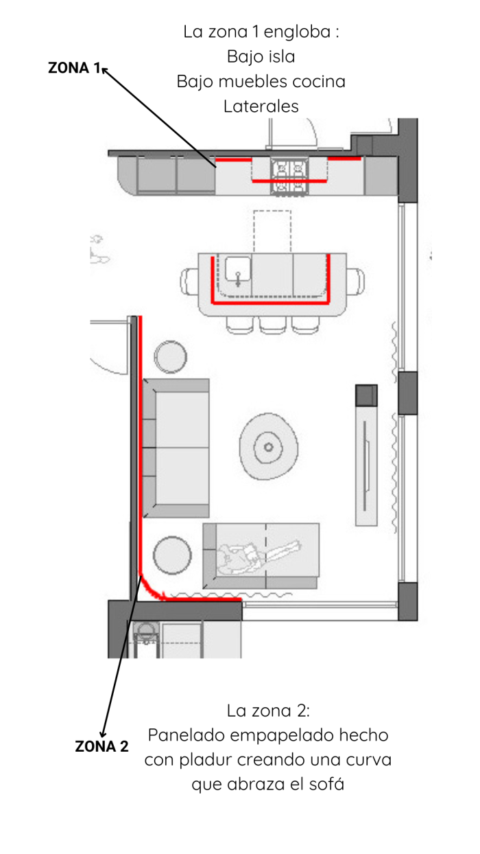
Ejemplo – Proyecto la Manga Aluse
En el proyecto «La Manga Aluse» utilizamos este sistema para el salón cocina. Un espacio abierto en el que la comodidad de un mando para accionar los múltiples leds tanto de la cocina como del salón primaron a la hora del diseño de este espacio.
Partimos del plano de planta donde se podemos observar dos zonas de iluminación led marcadas en rojo. La zona 1 engloba los leds situados bajo la isla, en los muebles suspendidos del frente de la cocina y en los laterales de la misma.

Puedes observar los alzados y las fotos reales del resultado


