Oficinas Transportes Cantero

fachada-oficina-transporte-chapa-ondulada-rotulo-retroiluminado-murcia-alberto-garcia-diseño-interior

Pincha aquí para ver ▶▶ RENDERS 3D TRANSPORTES CANTERO

El estudio de Alberto García Diseño Interior proyecta la reforma integral de las nuevas oficinas para la empresa de transportes “TRANSPORTES CANTERO 2012” ubicadas en Molina de Segura.

recepción oficinas modernas - separación espacios AG diseño interior

Las oficinas se encuentran dentro de la nueva sede, donde conviven en un mismo espacio la campa para la flota de camiones, un lavadero, el taller y una gasolinera para su autoconsumo.

El proyecto tiene su punto de partida en crear un espacio de trabajo agradable y diferente sin perder de vista la funcionalidad y eficiencia. Para ello, se ha trabajo en una distribución que cumple con todas las premisas que requiere una oficina de transportes.

Oficinas Transportes Cantero

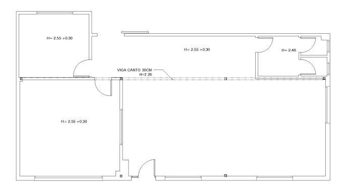
Estado Inicial

Distribución propuesta

cortina cristal división oficinas

El sentido de unidad y cohesión viene dado por el uso de los materiales utilizados como el nogal americano y los paneles acústicos decorativos en color gris del techo. La nota de color mostaza se repite en los tapizados de los paneles acústicos de los separadores de la mesas, en el banco de recepción y en los sillones de la sala de reuniones.

oficinas transportes canterio. Diseño alberto Garcia diseño interior. Separación estancias cristales. Modernas y elegantes.
Espacio de trabajo oficinas trasportes cantero. Armariada integrada y funcional. Paneles acústicos para confort auditivo. AG Diseño Interior. Transportes Cantero.

De esta forma se ha intentado “hogarizar” los espacios para que los empleados desarrollen su trabajo diario en un ambiente donde se sientan cómodos.

Recepcion oficna elegante hecha a medida. Diseño Alberto García Diseño Interior. Nogal Americano. Retroilumnado.
diseño de oficinas modernas. Integración de espacios de trabajo. Materiales naturales. Vegetación. Espacios Amables y acogedores.
oficinas abiertas. Espacios de trabajo integrados y abiertos. Diseño Alberto Garcia Diseño Interior. Murcia.
diseño de repeción elegante y funcional. Maeriales nobles y agradables. Iluminación perfecta.
diseño de recepción oficinas transportes. Integración de espacios. Espacios abiertos. Espacios de trabajo amigables.

Siguiendo con las formas del logotipo, en las que predomina el color negro y las formas redondeadas, hemos jugado con este concepto en los tiradores de los armarios continuando la forma de media luna en color negro que contrasta con el fondo en acabado roble Vicenza.

ag-diseño-interior-murcia-logotipo-retroiluminado-sobre-armario-chapa-madera-natural
Despacho dirección y sala de reuniones. Mesa Reverse y sillas Nuez. Andreu World. AG Diseño Interior. Techo Acústico. Iluminación funcional.
Despacho de dirección elegante y acogedor. Integración de espacios. AG diseño Interior. Oficinas transportes Cantero.
Sala de dirección y de reuniones. Mobiliario Andreu World y dynamobel. AG Diseño Interior. Oficinas Transportes Cantero.

Los paneles acústicos utilizados en la sala de reuniones actúa de pasarela envolvente que acota la mesa de reuniones y continua hasta la pantalla de televisión.

PANELES ACÚSTICOS FONOABSORBENTES

Que el color y la forma afecta en la manera de percibir una estancia, poca gente lo pone en duda, en cambio, lo que muchos no parecen tener en cuenta a la hora de diseñar una oficinas es el acondicionamiento acústico para el bienestar diario en el trabajo.

En este caso hemos utilizado paneles acústicos decorativos colocados en los techos y en los paneles separadores de las mesas. Estos paneles fonoabsorbentes reducen la reflexión del sonido entre los trabajadores mejorando la claridad del sonido y la reverberación. 


Este techo acústico en color gris, además de delimitar la zona de trabajo, oculta un sistema de ventilación que mantiene un ambiente de trabajo saludable y confortable para los trabajadores.

sala de trabajo oficinas de transporte. Paneles acusticos ecocero en techo con iluminacion integrada y paneles acusticos en mesas de trabajo. Sonido controlado. AG Diseño Interior. Transportes Cantero.

En el mismo diseño del techo se integra la iluminación suspendida entre los paneles acústicos. Para la iluminación general se han utilizado perfiles con difusores translúcidos y equipos led de alto rendimiento lumínico regulables para conseguir una iluminación uniforme, evitando así sombras molestas o deslumbramientos.

El acabado de los perfiles led en color negro sobre fondo negro crea una sensación de profundidad a la vez que aporta cienta elegancia. Las luminarias quedan enrasadas a los paneles acústicos mediante tijas de sujeción y los equipos de alimentación remotos ocultos quedando el techo limpio y ordenado visualmente.

sala de trabajo oficinas. Mesa de trabajo para 5 puesto Vira. Sillas Slat. Dynamobel. Oficinas Funcionales. Sonido controlado. AG Diseño Interior. Transportes Cantero 2012

Para el mobiliario de la sala de tráfico se ha elegido en chapa de melanina blanca que hace de base neutra y aporta simplicidad y calidez, dejando el protagonismo al techo y los separadores acústicos en color mostaza entre los puestos de trabajo enfrentados.

Paneles acústicos para confort auditivo. Iluminación integrada. Espacio de trabajo confortable y agradable. Almacenaje oculto y funcional. AG Diseño Interior. Transportes Cantero 2012.

DISEÑO DE LA FACHADA

fachada oficinas traslucida chapa microperforada diseño interior AG

El diseño de la fachada fue todo un reto ya que teníamos la problemática de acotar y diferenciar de alguna manera las oficinas de la nave contigua unidas por un pórtico.

ESTADO ANTERIOR FACHADA TRANSPORTES CANTERO
Diseño fachada con chapa microperforada, rotulo retroiluminado y alucobond

En su estado original, la fachada disponía de un diseño básico estilo industrial con materiales y proporciones sin sentido.  La elección de la chapa microperforada nos permitió resolver varias cuestiones:

  • Entrada de luz
  • Privacidad
  • Eficiencia energética
  • Diferenciación con la nave contigua
  • Ventilación

Esta chapa actúa como una segunda piel,  mejorando la eficiencia energética además de proporcionar una estética limpia al ocultar las ventanas sin perder luminosidad en el interior gracias a las micro perforaciones.

La elección de este material, permite la entrada de luz por el día y sin embargo desde fuera no se perciben las ventanas que quedan tras la chapa microperforada ocultando su interior. 

sala de espera oficinas transportes cantero

LISTADO DE PRODUCTOS UTILIZADOS EN ESTE PROYECTO: 

MOBILIARIO

Asiento de recepción modular “Kubica” de Enea Design

Mesa de reuniones Reverse 50 y sillones Nuez con base central giratoria de Andreu World

Mesas de trabajo Vira, silla Slat 16 y mesa de dirección Neta con vade de Dynamobel

ILUMINACIÓN TÉCNICA Y DECORATIVA 

Perfil suspendido iO de Basileus

Carril empotrable negro mate con cuatro proyectores Picolo de Beneito Faure

Empotrables Nano Oxo de Beneito Faure

Empotrable Swap de ArkosLight

Luminaria de emergencia IzarN30 de Daisalux

Lámpara suspendida Arc de Aromas del campo

Aplique de pared Erto Aromas del campo

Lámpara de sobremesa de  Lola Aromas del campo

Lámpara suspendida Mika de Aromas del campo

 

camiones transportes cantero

Constructora DASABOL

Carpintería de madera Hermanos Morell.

Cortinas y estores CRETONA

Pavimento modelo mainstone silver TAU CERÁMICA (Terrapilar)

Paneles acústicos decorativos  ECOCERO

Fachada servicios y montajes FORMIDABLES.

 

Si estás interesado en alguno de los productos  utilizados o necesitas ayuda en el diseño de tu proyecto de oficina, puedes contactar con nosotros y te asesoraremos de la mejor manera posible.

Fotografía: David Frutos